Community Design Space

Project No.05
Project Overview
To develop a new interior design of the space: map a blueprint of the building, build 3D model, analyze the current use of available space through circulation diagrams and questionnaires, organize focus groups to determine the current perception of the relationship between business and school organizations sharing the space, collaborate with clients to prioritize design implementations, and conceptualize a design for the future.
Foundation
As both Storefront and the mOb studiO move ahead with new leadership and ideas, it is important that their space accommodate their needs, missions and desires in a productive and inspirational way. This project involves the reconsideration of the existing mOb + storefront space with a modified program and the advantage of ten years in the space.
FINAL ITERATIONS


Design Choices
The way people think about where they work is changing. With the start of the pandemic and the new emphasis on designing a ‘contactless’ community, we wanted our design to celebrate the relational themes between Storefront and the mOb studio to rebuild the community between both organizations.

The crux of our design was moving the large working table from the front of the mOb studio to the main intersection of the mOb and Storefront sides. By emphasizing how both organizations support each other through their work, they can build upon their relationship and that with the community.

The second significant alteration was removing the door on the business side. In spotlighting a single door, SFCD will have more room to expand its office space, move its waiting area per request, and grow into the shared studio space while working with mOb students and community members.

These two significant design changes allow moments for the community to interact more with both spaces through curiosity and creativity, and the symbolism here follows through to more minor design changes throughout the studios.
Left Side Entry; Looking Toward Broad St. (above)
Left Side Entry; Looking toward Back of Studio (below)
Right Side Middle; Looking toward Broad St. (above)
Right Side Entry Closed; Looking Toward Broad St. (below)
Credit: Keenan Diggs-Rhodes
Process Documentation
Concept Diagram
One ring represents mOb and the other, Storefront. This shows how the spaces intersect. interact and how strong the relationship isbetween them.
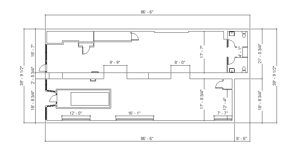
Dimensions
Circulation Path
Space Planning
See Full Project Booklet:
Here
Team
Community Design Space
Jan. 2022 - May 2022
In collaboration with:
Brock Hubbard, Interior Designer
Huda Muazzam, Interior Designer
Keenan Diggs-Rhodes, Interior Designer

Supported by:
VCU Arts mOb Studio
Storefront for Community Design

Presented for:
Shawn Balon, SFCD Executive Director
Camden Whitehead, mOb studio Co-Founder & Director